Progetto di Interni - ADVANCED Como 130mq
Progetto di interni completo per una villetta di nuova costruzione su due livelli con piano mansardato e doppia altezza nella zona giorno.

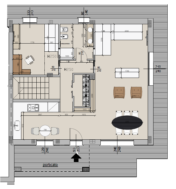
Dopo l'acquisto di una villetta su carta, il cliente aveva bisogno di una progettazione di interni completa, che includesse:
✔️ Distribuzione e divisione degli ambienti
✔️ Scelta di materiali, pavimenti, finiture
✔️ Cartongessi e progetto Illuminotecnico
✔️ Visualizzare il risultato finale
✔️Definizione di tutti gli arredi
✔️Progetto di Cucina, Camino, e falegnamerie su misura
Richiedeva anche la definizione di uno stile preciso, preferendo uno stile scandinavo con colori nero, bianco e parquet a pavimento, e desiderava valorizzare l’ingresso diretto sul soggiorno con l’inserimento di un camino.

💡 Grazie al nostro servizio di progettazione completa a distanza, ha ricevuto:
✨ Supporto online con 5 appuntamenti in videocall di avanzamento progetto + supporto via mail durante il periodo di progettazione
✨ Ridefinito la divisione interna degli spazi per entrambi i piani.
✨ Creato un moodboard per definire lo stile e la palette cromatica e visualizzato tutto in 3D con renderings realistici
✨8 disegni tecnici dettagliati per l’impresa, inclusi layout, cartongessi, illuminazione, cucina, bagni e falegnamerie su misura.
✨ shopping list completa con tutti gli arredi selezionati, acquistati successivamente dalla cliente direttamente sul nostro sito.
Shop the look
Image gallery



